عربي
Home
About
Message from the Chairman
Blog
News
Projects
Services
Career
Clients
Contact
Home
/
Projects
/
Office & Public
/
Al Jazira Bank Branches
Al Jazira Bank Branches
Loading Images…
al_jazirah_bank_branches_main.jpg
al_jazirah_bank_branches_1.jpg
al_jazirah_bank_branches_2.jpg
Project Information
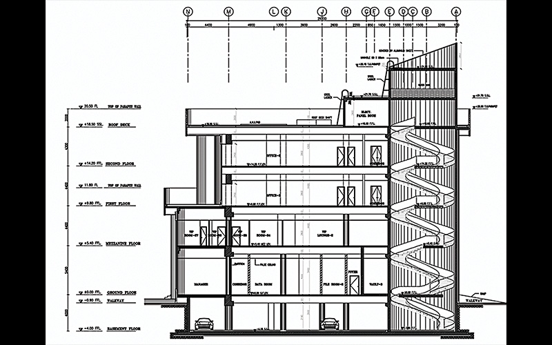
Bank Aljazira
Client
All Areas Throughout the Kingdom of Saudi Arabia
Location
Design
Scope
3,700.00 m
2
Site Area
800.00 m
2
Building Area
2
Floors
Other Office & Public Projects
Extension of El Seif Company H.Q. Building Project
Dar alyaum office tower
New H.Q. Building for the Saudi Investment Bank
Administrative Building & the Offices of Faculty Members of King